Chào mừng các em học sinh đến với lời giải chi tiết bài 2 trang 75 Sách bài tập Toán 6 – Chân trời sáng tạo. Bài viết này sẽ giúp các em hiểu rõ phương pháp giải và tự tin làm bài tập về nhà.
giaibaitoan.com luôn đồng hành cùng các em trên con đường chinh phục môn Toán, cung cấp đáp án chính xác và dễ hiểu nhất.
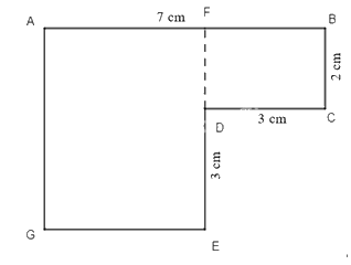
Tính chu vi và diện tích của hình bên, biết AB = 7 cm, BC = 2 cm, CD = 3 cm và DE = 3 cm.
Đề bài
Tính chu vi và diện tích của hình bên, biết AB = 7 cm, BC = 2 cm, CD = 3 cm và DE = 3 cm.

Phương pháp giải - Xem chi tiết
Tính đoạn AG, GE để suy ra chu vi.
Chia hình đã cho thành 2 hình chữ nhật để tính diện tích.
Lời giải chi tiết
Ta chia hình đã cho thành hai hình chữ nhật như hình dưới đây:

Dễ thấy: AG = BC + DE = 2 + 3 = 5 (cm)
GE = AF = AB – FB = AB – DC = 7 – 3 = 4 (cm)
Vậy chu vi hình trên là:
P = AB + BC + CD + DE + EG + GA = 7 + 2 + 3 + 4 + 5 = 21 (cm)
Diện tích hình chữ nhật AFEG là: AG . GE = 5 . 4 = 20 (\(c{m^2}\))
Diện tích hình chữ nhật FBND là: BC . CD = 2 . 3 = 6 (\(c{m^2}\))
Vậy diện tích của hình đã cho là: 20 + 6 = 26 (\(c{m^2}\))
Bài 2 trang 75 Sách bài tập Toán 6 – Chân trời sáng tạo thuộc chương trình học Toán 6, tập trung vào việc rèn luyện kỹ năng thực hiện các phép tính với số tự nhiên, đặc biệt là các phép tính cộng, trừ, nhân, chia và ứng dụng vào giải quyết các bài toán thực tế. Bài tập này giúp học sinh củng cố kiến thức đã học và phát triển tư duy logic, khả năng giải quyết vấn đề.
Bài 2 thường bao gồm các dạng bài tập sau:
Để giải bài 2 trang 75 Sách bài tập Toán 6 – Chân trời sáng tạo hiệu quả, học sinh cần nắm vững các bước sau:
Bài toán: Một cửa hàng có 350 kg gạo. Buổi sáng cửa hàng bán được 120 kg gạo, buổi chiều bán được 85 kg gạo. Hỏi cửa hàng còn lại bao nhiêu kg gạo?
Giải:
Số gạo cửa hàng bán được trong cả ngày là: 120 + 85 = 205 (kg)
Số gạo còn lại của cửa hàng là: 350 - 205 = 145 (kg)
Đáp số: Cửa hàng còn lại 145 kg gạo.
Ngoài Sách bài tập Toán 6 – Chân trời sáng tạo, học sinh có thể tham khảo thêm các tài liệu sau để nâng cao kiến thức và kỹ năng giải toán:
Bài 2 trang 75 Sách bài tập Toán 6 – Chân trời sáng tạo là một bài tập quan trọng giúp học sinh củng cố kiến thức và rèn luyện kỹ năng giải toán. Bằng cách nắm vững phương pháp giải và thực hành thường xuyên, các em sẽ tự tin chinh phục môn Toán và đạt kết quả tốt trong học tập.