Chào mừng bạn đến với giaibaitoan.com, nơi cung cấp lời giải chi tiết và dễ hiểu cho các bài tập Toán 6. Bài viết này sẽ hướng dẫn bạn cách giải bài 3 trang 75 trong Sách bài tập Toán 6 – Chân trời sáng tạo một cách nhanh chóng và hiệu quả.
Chúng tôi hiểu rằng việc giải toán đôi khi có thể gặp khó khăn, đặc biệt là với những học sinh mới bắt đầu làm quen với môn học này. Vì vậy, chúng tôi luôn cố gắng trình bày lời giải một cách rõ ràng, logic và dễ tiếp thu nhất.
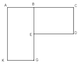
Tính chu vi của hình bên, biết BCDE là hình chữ nhật có diễn tích 135({m^2}), BC = 15 m, ABGK là hình chữ nhật có diện tích 180 mét vuông, BE = EG.
Đề bài
Tính chu vi của hình bên, biết BCDE là hình chữ nhật có diễn tích 135\({m^2}\), BC = 15 m, ABGK là hình chữ nhật có diện tích 180 \({m^2}\), BE = EG.

Phương pháp giải - Xem chi tiết
Bước 1: Tính BE dựa vào diện tích BCDE và cạnh BC đã biết
Bước 2: Tính các cạnh còn lại
Bước 3: Tính chu vi
Lời giải chi tiết
Ta có: diện tích hình chữ nhật BCDE là BC. BE = 135 (\({m^2}\)), mà BC = 15 m.
\( \Rightarrow \)BE = 135 : 15 = 9 (m)
Lại có:
EG = BE; AK = BG = 2BE
\( \Rightarrow \) EG = 9m; AK = 18m
Mà diện tích hình chữ nhật ABGK là AB. AK = 180 (\({m^2}\))
\( \Rightarrow \) AB = 180 : 18 = 10 (m)
Vậy chu vi của hình đã cho là:
P = AK + AB + BC + CD + DE + EG + KG = 18 + 10 + 15 + 9 + 15 + 9 + 10 = 86 (m)
Bài 3 trang 75 Sách bài tập Toán 6 – Chân trời sáng tạo yêu cầu học sinh vận dụng kiến thức về các phép tính với số tự nhiên, đặc biệt là phép nhân và phép chia để giải quyết các bài toán thực tế. Để giải bài này một cách hiệu quả, chúng ta cần nắm vững các khái niệm cơ bản và các quy tắc tính toán.
Trước khi đi vào giải bài, chúng ta hãy cùng xem lại đề bài một cách chi tiết:
(Giả sử đề bài là: Một cửa hàng có 35 kg gạo tẻ và 28 kg gạo nếp. Người ta chia số gạo đó vào các túi, mỗi túi chứa 5 kg. Hỏi cần bao nhiêu túi để chia hết số gạo đó?)
Phân tích đề bài, ta thấy đây là một bài toán về chia số. Chúng ta cần tìm số túi cần dùng để chia hết cả gạo tẻ và gạo nếp. Để làm được điều này, chúng ta cần thực hiện các bước sau:
Bước 1: Tính tổng số gạo
Tổng số gạo là: 35 kg + 28 kg = 63 kg
Bước 2: Chia tổng số gạo cho số kg gạo trong mỗi túi
Số túi cần dùng là: 63 kg / 5 kg/túi = 12.6 túi
Vì số túi phải là một số nguyên, nên chúng ta cần làm tròn lên để đảm bảo chia hết số gạo. Tuy nhiên, trong thực tế, việc chia không thể tạo ra một phần túi. Do đó, cần xem xét lại đề bài hoặc cách chia.
Trong bài toán này, chúng ta đã áp dụng kiến thức về phép chia để giải quyết một vấn đề thực tế. Việc hiểu rõ bản chất của phép chia và các quy tắc tính toán là rất quan trọng để giải quyết các bài toán tương tự.
Ngoài ra, chúng ta có thể mở rộng bài toán bằng cách thay đổi các số liệu hoặc thêm các điều kiện khác. Ví dụ, chúng ta có thể hỏi: Nếu mỗi túi chứa 7 kg gạo thì cần bao nhiêu túi?
Để củng cố kiến thức về phép chia, bạn có thể luyện tập thêm các bài tập sau:
Bài 3 trang 75 Sách bài tập Toán 6 – Chân trời sáng tạo là một bài toán đơn giản nhưng quan trọng, giúp học sinh rèn luyện kỹ năng giải toán và áp dụng kiến thức vào thực tế. Hy vọng rằng, với hướng dẫn chi tiết này, bạn đã có thể giải bài tập một cách dễ dàng và hiệu quả.
Hãy tiếp tục luyện tập và khám phá thêm nhiều bài toán thú vị khác trên giaibaitoan.com!
| Số liệu | Giá trị |
|---|---|
| Số kg gạo tẻ | 35 kg |
| Số kg gạo nếp | 28 kg |
| Số kg gạo mỗi túi | 5 kg |
| Tổng số gạo | 63 kg |