Bài 3.14 trang 79 Chuyên đề học tập Toán 11 Kết nối tri thức là một bài tập quan trọng giúp học sinh rèn luyện kỹ năng về đạo hàm và ứng dụng của đạo hàm trong việc khảo sát hàm số. Bài tập này thường yêu cầu học sinh phải tính đạo hàm, tìm cực trị và vẽ đồ thị hàm số.
Tại giaibaitoan.com, chúng tôi cung cấp lời giải chi tiết, dễ hiểu cho bài tập này, giúp các em học sinh nắm vững kiến thức và tự tin giải các bài tập tương tự.
Hãy cùng giaibaitoan.com khám phá lời giải chi tiết cho bài 3.14 trang 79 ngay bây giờ!
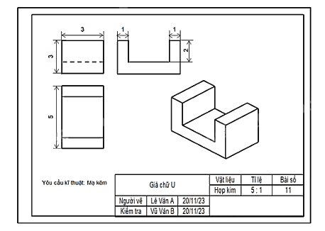
Lập bản vẽ kĩ thuật của vật thể giá chữ U được biểu diễn trên giấy kẻ ô tam giác đều trong Hình 3.49.
Đề bài
Lập bản vẽ kĩ thuật của vật thể giá chữ U được biểu diễn trên giấy kẻ ô tam giác đều trong Hình 3.49. Quy ước mỗi cạnh của tam giác đều có chiều dài là 1 cm.

Phương pháp giải - Xem chi tiết
Khi lập bản vẽ kĩ thuật ta thực hiện theo các bước sau:
Bước 1: Quan sát vật thể và phân tích vật thể thành các hình khối đơn giản.
Bước 2: Chọn cac hướng chiếu phù hợp, thường là các hướng vuông góc với các mặt của vật thể.
Bước 3: Vẽ hình chiếu vuông góc của các hình khối cấu tạo nên vật thể.
Bước 4: Xóa cac nét thừa, chỉnh sửa các nét vẽ theo đúng tiêu chuẩn và ghi kích thước trên các hình chiếu.
Bước 5: Từ ba hình chiếu vuông góc vừa vẽ, vẽ hình chiếu trục đo vuông góc đều của vật thể.
Bước 6: Kẻ khung bản vẽ, khung tên, ghi các nội dung vào khung tên để hoàn thành bản vẽ.
Lời giải chi tiết
Bước 1: Nhận thấy rằng vật thể có dạng khối chữ U được bao bởi một hình hộp chữ nhật, phần rãnh cũng là hình hộp chữ nhật.

Bước 2: Chọn các hướng chiếu lần lượt vuông góc với mặt trước, mặt trên và mặt bên trái của vật thể.

Bước 3: Lần lượt vẽ hình chiếu vuông góc của hình hộp chữ nhật bao bên ngoài vật thể, của khối chữ U và của rãnh hộp chữ nhật.


c)
Bước 4: Xóa các nét thừa, chỉnh sửa các nét vẽ theo quy tắc: các đường thấy vẽ bằng nét liền; các đường khuất vẽ bằng nét đứt. Ghi các kích thước của vật thể trên các hình chiếu.

Bước 5: Vẽ hình chiếu trục đo vuông góc đều của vật thể.


Bước 6: Hoàn thành khung tên, khung bản vẽ để được bản vẽ cuối cùng có dạng như sau:

Bài 3.14 trang 79 Chuyên đề học tập Toán 11 Kết nối tri thức là một bài toán thuộc chương trình học về đạo hàm và ứng dụng của đạo hàm. Bài toán này thường yêu cầu học sinh vận dụng các kiến thức đã học để giải quyết các vấn đề thực tế liên quan đến sự biến thiên của hàm số.
Trước khi bắt đầu giải bài toán, chúng ta cần đọc kỹ đề bài và xác định rõ yêu cầu của bài toán. Trong bài 3.14, yêu cầu thường là tìm tập xác định của hàm số, tính đạo hàm, tìm cực trị, và khảo sát sự biến thiên của hàm số.
Để giải bài 3.14 trang 79, chúng ta sẽ thực hiện các bước sau:
Giả sử hàm số được cho là f(x) = x3 - 3x2 + 2. Chúng ta sẽ thực hiện các bước sau để giải bài toán:
Khi giải bài toán về đạo hàm và ứng dụng của đạo hàm, cần lưu ý các điểm sau:
Bài toán về đạo hàm và ứng dụng của đạo hàm có nhiều ứng dụng trong thực tế, chẳng hạn như:
Để rèn luyện kỹ năng giải bài toán về đạo hàm và ứng dụng của đạo hàm, bạn có thể tham khảo các bài tập tương tự trong sách giáo khoa và các tài liệu tham khảo khác.
Bài 3.14 trang 79 Chuyên đề học tập Toán 11 Kết nối tri thức là một bài toán quan trọng giúp học sinh rèn luyện kỹ năng về đạo hàm và ứng dụng của đạo hàm. Hy vọng rằng với hướng dẫn chi tiết và dễ hiểu trên đây, các em học sinh sẽ tự tin giải bài toán này và đạt kết quả tốt trong học tập.