Chào mừng bạn đến với giaibaitoan.com, nơi cung cấp lời giải chi tiết và dễ hiểu cho các bài tập Toán 11. Bài viết này sẽ hướng dẫn bạn cách giải bài 3.24 trang 81 trong Chuyên đề học tập Toán 11 Kết nối tri thức một cách nhanh chóng và hiệu quả.
Chúng tôi luôn cố gắng mang đến những phương pháp giải toán tối ưu, giúp bạn nắm vững kiến thức và tự tin hơn trong quá trình học tập.
Một vật thể được biểu diễn trên giấy kẻ ô tam giác đều như trong Hình 3.54
Đề bài
Một vật thể được biểu diễn trên giấy kẻ ô tam giác đều như trong Hình 3.54. Quy ước chiều dài mỗi cạnh của tam giác đều là 10 mm, hãy lập bản vẽ kĩ thuật của vật thể đó và tính thể tích của nó.

Phương pháp giải - Xem chi tiết
Để lập bản vẽ kĩ thuật cho một vật thể ta thực hiện các bước sau:
- Quan sát vật thể, phân tích hình dạng và chọn các hướng chiếu vuông góc với các mặt của vật thể.
- Chọn tỉ lệ thích hợp với khổ giấy và kích thước vật thể. Bố trí ba hình chiếu cân đối trên bản vẽ theo các hình chữ nhật bao ngoài các hình chiếu.
- Vẽ ba hình chiếu từng phần của vật thể với các đường gióng tương ứng từ tổng quát đến chi tiết.
- Tô đậm các nét thấy của vật thể trên các hình chiếu, dùng nét đứt để biểu diễn các đường bao khuất.
- Kẻ các đường gióng kích thước, đường kích thước và ghi số kích thước trên các hình chiếu.
- Kẻ khung vẽ, khung tên, ghi các nội dung của khung tên.
Lời giải chi tiết
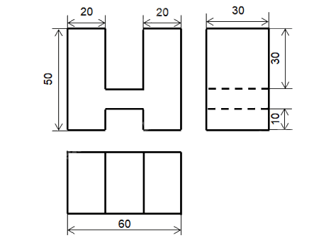
Bước 1: Nhận thấy rằng vật thể có dạng khối chữ H được bao bởi một hình hộp chữ nhật, hai phần rãnh cũng là hình hộp chữ nhật.

Bước 2: Chọn các hướng chiếu lần lượt vuông góc với mặt trước, mặt trên và mặt bên trái của vật thể.

Bước 3: Lần lượt vẽ hình chiếu vuông góc của hình hộp chữ nhật bao bên ngoài vật thể, của khối chữ H và của rãnh hộp chữ nhật.


Bước 4: Xóa các nét thừa, chỉnh sửa các nét vẽ theo quy tắc: các đường thấy vẽ bằng nét liền; các đường khuất vẽ bằng nét đứt. Ghi các kích thước của vật thể trên các hình chiếu.

Bước 5: Vẽ hình chiếu trục đo vuông góc đều của vật thể.


Bước 6: Hoàn thành khung tên, khung bản vẽ để được bản vẽ cuối cùng có dạng như sau:

Ta có: Thể tích của giá chữ H bằng hiệu thể tích của hình hộp chữ nhật bao ngoài và thể tích của hai rãnh hộp chữ nhật.
Thể tích hình hộp chữ nhật bao ngoài là: 60 . 30 . 50 = 90 000 (mm3).
Thể tích rãnh hộp chữ nhật thứ nhất là: 30 . 20 . 30 = 18 000 (mm3).
Thể tích rãnh hộp chữ nhật thứ hai là: 20 . 30 . 10 = 6 000 (mm3).
Vậy thể tích của giá chữ H là: 90 000 – 18 000 – 6 000 = 66 000 (mm3).
Bài 3.24 trang 81 Chuyên đề học tập Toán 11 Kết nối tri thức là một bài tập quan trọng, đòi hỏi học sinh phải nắm vững kiến thức về đường thẳng và mặt phẳng trong không gian. Bài tập này thường yêu cầu học sinh xác định mối quan hệ giữa các đường thẳng và mặt phẳng, tính góc giữa chúng, hoặc chứng minh tính song song, vuông góc.
Trước khi bắt đầu giải bài, chúng ta cần đọc kỹ đề bài và xác định rõ yêu cầu của bài toán. Điều này giúp chúng ta lựa chọn phương pháp giải phù hợp và tránh sai sót không đáng có. Thông thường, đề bài sẽ cho trước một số thông tin về các đường thẳng và mặt phẳng, và yêu cầu chúng ta tìm một đại lượng nào đó, chẳng hạn như góc, khoảng cách, hoặc chứng minh một tính chất nào đó.
Để giải bài 3.24 trang 81 Chuyên đề học tập Toán 11 Kết nối tri thức, bạn cần nắm vững các kiến thức sau:
(Nội dung lời giải chi tiết bài 3.24 trang 81 sẽ được trình bày tại đây, bao gồm các bước giải, các công thức sử dụng, và các giải thích rõ ràng. Lời giải sẽ được chia thành các phần nhỏ để dễ theo dõi và hiểu.)
Ví dụ, nếu bài toán yêu cầu tính góc giữa đường thẳng d và mặt phẳng (P), chúng ta có thể sử dụng công thức sau:
sin(θ) = |cos(α)|, trong đó θ là góc giữa đường thẳng d và mặt phẳng (P), và α là góc giữa đường thẳng d và hình chiếu của nó lên mặt phẳng (P).
Ngoài bài 3.24 trang 81, Chuyên đề học tập Toán 11 Kết nối tri thức còn có nhiều bài tập tương tự về đường thẳng và mặt phẳng. Để giải các bài tập này, bạn có thể áp dụng các phương pháp sau:
Để củng cố kiến thức và rèn luyện kỹ năng giải bài tập, bạn có thể thử giải các bài tập sau:
Bài 3.24 trang 81 Chuyên đề học tập Toán 11 Kết nối tri thức là một bài tập quan trọng, giúp bạn hiểu sâu hơn về đường thẳng và mặt phẳng trong không gian. Hy vọng rằng, với hướng dẫn chi tiết và các phương pháp giải đã trình bày, bạn sẽ tự tin hơn trong việc giải các bài tập tương tự.
Hãy luyện tập thường xuyên và áp dụng các kiến thức đã học vào thực tế để đạt kết quả tốt nhất trong môn Toán.
| Khái niệm | Định nghĩa |
|---|---|
| Đường thẳng | Tập hợp các điểm sao cho hai điểm bất kỳ trên đó đều nằm trên một đường thẳng. |
| Mặt phẳng | Tập hợp các điểm sao cho ba điểm bất kỳ trên đó đều không thẳng hàng. |