Bài 4.33 trang 77 sách bài tập Toán 6 Kết nối tri thức với cuộc sống là một bài tập quan trọng giúp học sinh rèn luyện kỹ năng giải toán về các phép tính với số nguyên. Bài tập này yêu cầu học sinh vận dụng kiến thức đã học để giải quyết các bài toán thực tế.
Tại giaibaitoan.com, chúng tôi cung cấp lời giải chi tiết, dễ hiểu cho bài tập này, giúp các em học sinh nắm vững kiến thức và tự tin giải các bài tập tương tự.
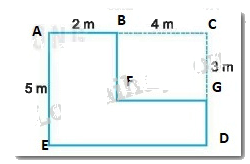
Một mảnh sân nhà có hình dạng và kích thước như Hình 4.26. a) Tính diện tích mảnh sân. b) Nếu lát sân bằng những viên gạch hình vuông có cạnh 50 cm thì cần bao nhiêu viên gạch?
Đề bài
Một mảnh sân nhà có hình dạng và kích thước như Hình 4.26.
a) Tính diện tích mảnh sân.
b) Nếu lát sân bằng những viên gạch hình vuông có cạnh 50 cm thì cần bao nhiêu viên gạch?

Phương pháp giải - Xem chi tiết
Ta có thể chia mảnh sân thành hai hình chữ nhật gồm 2 hình chữ nhật hoặc kẻ thêm nét
Lời giải chi tiết
a)
Cách 1:
Ta có thể chia mảnh sân thành hai hình chữ nhật gồm 2 hình chữ nhật như sau:

Diện tích của hình chữ nhật ABFG là:
5. 2 = 10 (m2)
Độ dài CF là:
5 – 3 = 2 (m)
Diện tích của hình chữ nhật CDEF là:
4. 2 = 8 (m2)
Diện tích của mảnh vườn là:
10 + 8 = 18 (m2)
Cách 2: Ta có thể chia mảnh sân thành hai hình chữ nhật gồm 2 hình chữ nhật như sau:

Diện tích của hình chữ nhật ABCG là:
3. 2 = 6 (m2)
Độ dài DG là:
4 + 2 = 6 (m)
Độ dài GF là:
5 – 3 =2 (m)
Diện tích của hình chữ nhật GDEF là:
6. 2 = 12 (m2)
Diện tích của mảnh vườn là:
6 + 12 = 18 (m2)
Cách 3:

Diện tích mảnh sân chính là diện tích hình chữ nhật ACDE trừ đi diện tích của hình chữ nhật BCGF
Độ dài AC là:
2 + 4 = 6 (m)
Diện tích hình chữ nhật ACDE là:
5. 6 = 30 (m2)
Diện tích hình chữ nhật BCGF là:
4. 3 = 12(m2)
Diện tích của mảnh vườn là:
30 – 12 = 18 (m2)
b) Đổi 50 cm = 0,5 m
Diện tích một viên gạch lát là:
0,5. 0,5 = 0,25(m2)
Số viên gạch dùng để lát sân là:
18: 0,25 = 72 (viên)
Vậy diện tích mảnh sân là 18 m2 và cần dùng 72 viên gạch để lát sân.
Lời giải hay
Bài 4.33 trang 77 sách bài tập Toán 6 Kết nối tri thức với cuộc sống là một bài tập thuộc chương trình học Toán 6, tập trung vào việc củng cố kiến thức về các phép tính với số nguyên, đặc biệt là phép cộng, trừ, nhân, chia số nguyên. Bài tập này thường xuất hiện trong các bài kiểm tra và thi học kỳ, do đó việc nắm vững phương pháp giải là rất quan trọng.
Bài tập 4.33 thường bao gồm các câu hỏi yêu cầu học sinh thực hiện các phép tính với số nguyên, ví dụ như:
Để giải bài tập 4.33 trang 77 sách bài tập Toán 6 Kết nối tri thức với cuộc sống một cách hiệu quả, học sinh cần nắm vững các kiến thức sau:
Dưới đây là lời giải chi tiết cho bài tập 4.33 trang 77 sách bài tập Toán 6 Kết nối tri thức với cuộc sống. (Lưu ý: Nội dung lời giải cụ thể sẽ phụ thuộc vào từng dạng bài tập cụ thể.)
Ví dụ, nếu bài tập yêu cầu tính giá trị của biểu thức: (-3) + 5 - (-2) * 4
Ta thực hiện như sau:
(-2) * 4 = -8(-3) + 5 = 2, sau đó 2 - (-8) = 2 + 8 = 10Để củng cố kiến thức và kỹ năng giải bài tập về số nguyên, học sinh có thể tham khảo các bài tập tương tự sau:
(-5) - 2 + (-3) * 5, 12 : (-3) + 4 - (-1)Toán 6 là nền tảng quan trọng cho các môn học tiếp theo, đặc biệt là Toán học. Việc học tốt Toán 6 sẽ giúp học sinh:
Giaibaitoan.com là một website học toán online uy tín, cung cấp đầy đủ các tài liệu học tập, bài giảng, bài tập và lời giải chi tiết cho các môn Toán từ lớp 1 đến lớp 12. Chúng tôi cam kết mang đến cho học sinh một môi trường học tập hiệu quả, giúp các em học tốt môn Toán và đạt kết quả cao.
Hãy truy cập giaibaitoan.com ngay hôm nay để khám phá thêm nhiều tài liệu học tập hữu ích và nhận được sự hỗ trợ từ đội ngũ giáo viên giàu kinh nghiệm!