Bài 7.40 trang 41 sách bài tập Toán 11 - Kết nối tri thức là một bài tập quan trọng trong chương trình học. Bài tập này yêu cầu học sinh vận dụng kiến thức về vectơ, các phép toán vectơ và ứng dụng của vectơ trong hình học để giải quyết các bài toán cụ thể.
Tại giaibaitoan.com, chúng tôi cung cấp lời giải chi tiết, dễ hiểu cho bài tập này, giúp học sinh nắm vững kiến thức và rèn luyện kỹ năng giải toán.
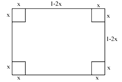
Người ta cắt bỏ bốn hình vuông cùng kích thước ở bốn góc của một tấm tôn hình vuông có cạnh \(1{\rm{\;m}}\)
Đề bài
Người ta cắt bỏ bốn hình vuông cùng kích thước ở bốn góc của một tấm tôn hình vuông có cạnh \(1{\rm{\;m}}\) để gò lại thành một chiếc thùng có dạng hình hộp chữ nhật không nắp. Hỏi cạnh của các hình vuông cần bỏ đi có độ dài bằng bao nhiêu để thùng hình hộp nhận được có thể tích lớn nhất?
Phương pháp giải - Xem chi tiết
Áp dụng công thức tính thể tích khối hộp chữ nhật: \({\rm{V}} = a.b.c\).
Trong đó: \(a,b,c\) là độ dài 3 cạnh hình hộp chữ nhật có chung 1 đỉnh
Bước 1: Gọi \(x\left( {{\rm{\;m}}} \right)\) là chiều dài cạnh hình vuông nhỏ tại mỗi góc của tấm tôn được cắt bỏ đi (với \(0 < x < \frac{1}{2}\) ).
Tính thể tích hình hộp chữ nhật nhận được
Bước 2: Tìm giá trị lớn nhất của thể tích hình hộp chữ nhật nhận được
Từ đó tìm \(x\)
Lời giải chi tiết

Gọi \(x\left( {{\rm{\;m}}} \right)\) là chiều dài cạnh hình vuông nhỏ tại mỗi góc của tấm tôn được cắt bỏ đi (với \(0 < x < \frac{1}{2}\) ).
Thể tích hình hộp chữ nhật nhận được là
\(V = {(1 - 2x)^2} \cdot x = \frac{1}{4} \cdot \left( {1 - 2x} \right) \cdot \left( {1 - 2x} \right) \cdot 4x \le \frac{1}{4} \cdot {\left( {\frac{{1 - 2x + 1 - 2x + 4x}}{3}} \right)^3} = \frac{2}{{27}}\)
Dấu "=" xảy ra khi \(1 - 2x = 4x \Leftrightarrow x = \frac{1}{6}\).
Vậy để thể tích chiếc thùng là lớn nhất thì các cạnh của hình vuông được cắt bỏ đi là \(\frac{1}{6}{\rm{\;m}}\).
Bài 7.40 trang 41 sách bài tập Toán 11 - Kết nối tri thức thuộc chương trình học về vectơ trong không gian. Để giải bài tập này, học sinh cần nắm vững các kiến thức cơ bản về:
Bài tập 7.40 thường yêu cầu học sinh thực hiện các thao tác sau:
Để giúp học sinh hiểu rõ hơn về cách giải bài tập này, chúng tôi xin trình bày lời giải chi tiết như sau:
(Giả sử bài tập có nội dung cụ thể, ví dụ: Cho hình hộp ABCD.A'B'C'D'. Gọi M là trung điểm của cạnh AB. Chứng minh rằng: vectơ AM = 1/2 vectơ AB )
Lời giải:
Vì M là trung điểm của cạnh AB, theo định nghĩa trung điểm, ta có:
AM = MB
Mà AB = AM + MB
Suy ra AB = AM + AM = 2AM
Do đó, AM = 1/2 AB (đpcm)
Ngoài bài tập 7.40, còn rất nhiều bài tập tương tự liên quan đến vectơ trong không gian. Để giải các bài tập này, học sinh có thể áp dụng các phương pháp sau:
Khi giải bài tập về vectơ, học sinh cần lưu ý những điều sau:
Để học tốt môn Toán 11, học sinh có thể tham khảo các tài liệu sau:
Bài tập 7.40 trang 41 sách bài tập Toán 11 - Kết nối tri thức là một bài tập quan trọng giúp học sinh củng cố kiến thức về vectơ và rèn luyện kỹ năng giải toán. Hy vọng với lời giải chi tiết và các hướng dẫn trên, học sinh sẽ giải quyết bài tập này một cách dễ dàng và hiệu quả.